Centro di Riabilitazione Residenziale
Lega Del Filo D’Oro

Termini Imerese (PA)

COMMITTENTE
Ditta Edilgara
LAVORI
Progetto per la realizzazione di un Centro sanitario di riabilitazione residenziale per persone sordocieche e pluriminorate psicosensoriali delle “Lega del Filo D’Oro” sita a Termini Imerese (PA).
SERVIZIO SVOLTO
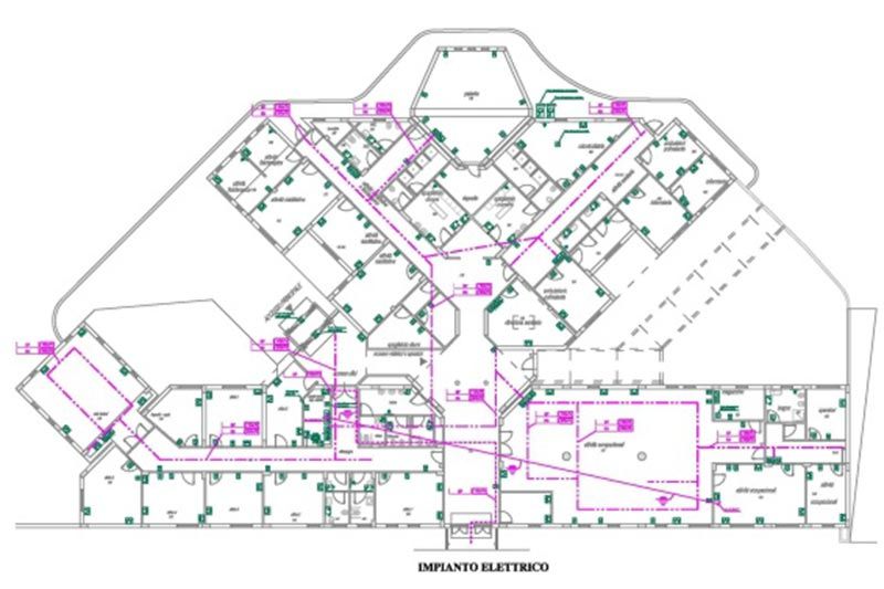
Incarico di progettazione costruttiva e assistenza ai lavori per la realizzazione degli impianti elettrici e speciali.
DESCRIZIONE DEI LAVORI
Il progetto prevede la riqualificazione di un complesso di edifici per la realizzazione al suo interno di un centro Sanitario di riabilitazione. Il complesso è composto da quattro edifici completamente ristrutturati internamente ed esternamente, si compongono di una serie di piani dove al suo interno vi sono degenze, locali tecnici, uffici e locali di riabilitazione varia.
IMPORTO LAVORI
Importo dei lavori a base d'asta: Da definire
Tre Esse Studio Palermo

Via Ferdinando Ferri, 44 – 90143 Palermo - P.iva 04984570822
Tel/Fax: +390917098589 | Mobile : +393384705373
Copyright © 2019-2020